新闻资讯
新闻资讯
- 《山东省消防条例》2025最新版 2026年1月1日实施
- 室外疏散楼梯2m范围内可以设置防火窗吗?
- 货梯前装防火卷帘隔离,消防联动测试货梯需要联动迫降吗?
- 什么是消防水炮的射流半径、监控半径、最大保护半径
- 储油罐冷却系统的选择问题
联系我们
厂家:乐鱼电竞检测设备厂家
手机:15262554119
电话:4006-598-119
邮箱:18751140119@163.com
地址:江苏省苏州市常熟市黄河路275号119室
常见问题
消防设计违反强条导致验收不通过,开发商起诉设计单位
- 作者:四川消防检测设备
- 发布时间:2023-05-05 14:52:53
- 来源:/
- 点击:778

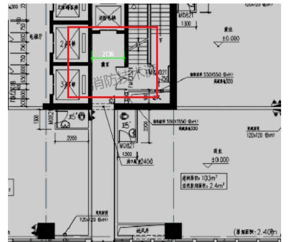
《建筑设计防火规范》GB50016-2014(2018年版):
7.3.5 除设置在仓库连廊、冷库穿堂或谷物筒仓工作塔内的消防电梯外,消防电梯应设置前室,并应符合下列规定:
1 前室宜靠外墙设置,并应在首层直通室外或经过长度不大于30m 的通道通向室外;
2 前室的使用面积不应小于6.0m?,前室的短边不应小于2.4m;与防烟楼梯间合用的前室,其使用面积尚应符合本规范第5.5.28条和第6.4.3条的规定;
3 除前室的出入口、前室内设置的正压送风口和本规范第5.5.27条规定的户门外,前室内不应开设其他门、窗、洞口;
4 前室或合用前室的门应采用乙级防火门,不应设置卷帘。
《建筑防火通用规范》GB55037-2022:
2.2.8 除仓库连廊、冷库穿堂和筒仓工作塔内的消防电梯可不设置前室外,其他建筑内的消防电梯均应设置前室。消防电梯的前室应符合下列规定:
1 前室在首层应直通室外或经专用通道通向室外,该通道与相邻区域之间应采取防火分隔措施。
2 前室的使用面积不应小于6.0m?,合用前室的使用面积应符合本规范第7.1.8条的规定;前室的短边不应小于2.4m。
3 前室或合用前室应采用防火门和耐火极限不低于2.00h的防火隔墙与其他部位分隔。除兼作消防电梯的货梯前室无法设置防火门的开口可采用防火卷帘分隔外,不应采用防火卷帘或防火玻璃墙等方式替代防火隔墙。
- 上一篇:喷淋系统末端试水装置监控系统的设计
- 下一篇:酒店给排水系统设计中的常见的问题(1)






























苏公网安备32058102002160号
客服QQ